+30 års erfaring
Montering i hele DK
Personlig rådgivning
Totalentreprise
Reservedele til brændeovne
Reservedele til pejseindsatse
Reservedele til pilleovne
Reservedele til HWAM brændeovne og pejseindsatse
Reservedele til Termatech brændeovn
Reservedele til Lotus brændeovne og pejseindsatse
Reservedele til Caminetti Montegrappe pilleovne
Reservedele til Wiking brændeovne
Reservedele til RAIS brændeovne og pejseindsatse
RESERVEDELE
Hvis du ikke træffer os på telefon, kan du altid kontakte os via vores kontaktformular.
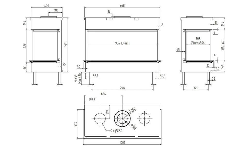
INDBYGNINGSMODEL I POPULÆR STØRRELSE
Varenr. 1210-0010-0001
PRODUKTBESKRIVELSE:
| Type: | 3-sidet gaspejs |
| Brændselstype: | Naturgas el. flaskegas (vælges ved bestilling) |
| App-styring: |
| Glasmål (cm): | D31 X H41 X L91 |
| Driftsområde (kW): | 7 |
| Indbygningsmål (cm): | D40 X H70 X L101 |
M-Design Luna Diamond 1000DC er en 3-sidet gaspejs-. Glasset på de tre sider, giver kig til flammerne fra flere vinkler. Modellen er beregnet til indbygning, og den kræver balanceret aftræk. Til pejsens inderside kan der. Læge mellem tre typer beklædning: metal, støbejern eller sort spejlglas. I bunden af pejsen placeres keramiske brændestykker, som giver det rigtige “pejse-look”.
Der kan vælges mellem Single Line- og Double Line-brændere. Vores anbefaling er, at du vælger Double Line, fordi den giver det dybeste bål. Med Double Line har du også funktionen DCOSWITCH, hvor du kan slukke for udvalgte brændere. Denne funktion er nyttig, hvis der ikke brug for så høj varmeafgivelse.
Med den medfølgende fjernbetjening kan du tænde, regulere og slukke pejsen. Desuden kan du aktiverer funktionen ECOWAVE, hvor gastilførslen varieres, så du får et smuk “dansende” flammebillede. Denne funktion er også tilgængelig, hvis du tilkøber app-styring. Her kan du tilmed designe dine flammebilleder.
SE OGSÅ
TILVALGSMULIGHEDER:
kr. 44.100,00
(ekskl. opbygning og montering)
Plus leveringsomkostninger
MONTERING I HELE DANMARK
Vi har monteret pejse og brændeovne i hele Danmark. Skal vi også montere en hos dig? Klik ovenover for at få et uforpligtende tilbud.

Har du spørgsmål? Kontakt en medarbejder!
TERMATECH HONEYWELL KULILTEALARM - SIKKERHEDSTILBEHØR TIL BOLIGEN En...
Pris kr. 699,00
Brændeovnsgitter til brændeovn og pejs. Låge 710 x...
Pris kr. 2.049,00
Termatech TT80 serien er større brændeovne med et...
Pris kr. 19.995,00
EN SERIE AF BRUGERVENLIGE BRÆNDEOVNE Med TT23 serien...
Pris kr. 24.995,00
TT20BAZIC R fra TERMATECH er en effektiv fritstående...
Pris kr. 10.495,00
EN BRÆNDEOVN I STILRENT OG STRINGENT DESIGN Med...
Pris kr. 12.995,00
FREDERIK PEDERSEN
Hjemmeside
HIMMERLANDS PEJSECENTER
Smedevej 10, 9500 Hobro
post@himmerlandspejsecenter.dk
CVR-nr.: 33060750
![]()
ÅBNINGSTIDER
2026 Himmerlands Pejsecenter.Der tages forbehold for trykfejl